Appartamento in vendita Via Camillo Benso Conte di Cavour , Gazzo Veronese
Correzzo120mq
4locali

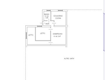
Gazzo Veronese – Corezzo | Piano terra 120 mq con giardino e 2 posti auto – da ristrutturare
In posizione tranquilla e riservata, proponiamo in vendita unità al piano terra di circa 120 mq commerciali (circa 95 mq utili), completamente indipendente e separata dal resto della proprietà, con spazio esterno/giardino privato e 2 posti auto.
L’immobile è attualmente internamente demolito (ideale per personalizzare totalmente gli spazi) ma risulta già predisposto/servito con impianti principali e caldaia (da verificare e ripristinare/adeguare).
Soluzione ideale per chi cerca una prima casa a budget contenuto o un investimento da mettere a reddito dopo il completamento lavori.
Prezzo: € 49.000
Possibilità di valutare permuta.
Opzioni extra (a parte): disponibilità di garage/magazzino.
Per informazioni e sopralluogo: inviare messaggio indicando nome, telefono e disponibilità....
Aggiornato il 20 Febbraio 2026Scrivi qui le tue note private sull'annuncio
Caratteristiche immobile
- Stato al Rogito:libero
- Bagni:1
- Locali:4
- Metri quadri:120
- Condizioni:abitabile
- Piano:piano terra
- Anno di costruzione:1970
- Posti Auto:2
- Riscaldamento:autonomo
- Giardino:privato